Till salu Sälja Köpa Våra tjänster Om oss Kontakt

Ravinstigen 15

Visby - Centralt - Hällarna

4 250 000 kr

Central 4:a ovanför hamnen med uteplats och havsutsikt

Med utmärkt läge på Hällarna, strax söder om Visby innerstad, ligger denna mycket attraktiva gavellägenhet om 105 kvm med havsutsikt. Här bor du med centralt och bra läge, stor uteplats mot väster med underbar havsutsikt och fräscha och välplanerade boendeytor.

Vardagsrummet ligger i öppen planlösning mot köket och rakt ut mot väster finns en stor uteplats varifrån du kan följa solnedgångarnas skådespel från första parkett med ny föreställning varje kväll. Två helkaklade duschrum och tre bra sovrum som alla vetter mot norr.

Populär och omtyckt förening där både hiss och parkeringsplatser erbjuds, allt för ett bekvämt boende.

Lägenheten är dessutom handikappanpassad med ingång från uteplatsen.

Varmt välkommen att boka dig på visning!

Typ
Lägenhet
Adress
Ravinstigen 15
Område
Visby - Centralt - Hällarna
Ort
VISBY
Antal rum
4 rum, varav 3 sovrum
Boarea
105 kvm
Månadsavgift
6 556 kr/mån
Utgångpris
4 250 000 kr
Välkommen på visning
Kontakta mäklaren för visning.
Ansvarig mäklare Catrine Löfkvist
073 803 39 00
catrine@bertwig.se
Catrine Löfkvist

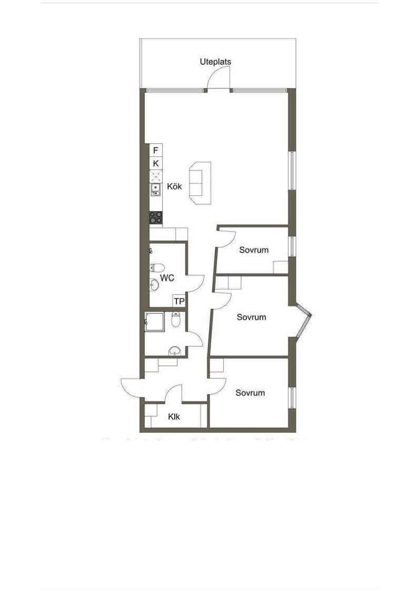
Planlösning

Rymlig hall med praktiskt klinkergolv med golvvärme, garderob, plats för avhängning samt ett stort förråd i direkt anslutning till hallen.

Tre sovrum, två stora och ett lite mindre, samtliga med fönster i norr, parkettgolv och garderober.

Kök och vardagsrum i öppen planlösning med parkettgolv, stora fönsterpartier mot havet i väster, utgång till den stenlagda uteplatsen med markis samt matplats invid fönster. Köket har massiva skåpsluckor i björk samt köksbänkar i granit. Köksutrustning i form av kyl, frys, induktionshäll, fläkt, diskmaskin, inbyggnadsugn och mikro.

Två helkaklade duschrum med golvvärme, toalett, handfat, dusch samt handdukstork. Ena duschrummet erbjuder en tvättstugedel med tvättmaskin och torktumlare.
Byggnadstyp
Flerfamiljshus
Byggnadsår
2005
Fönster
2-glasfönster
Uppvärmning
Bergvärme
Ventilation
Mekanisk frånluft
Våningsplan
1 av 5. Hiss finns.
Renovering
2024: Tapetsering av två sovrum och hall.
Areakälla
Areauppgifter enligt bostadsföreningen.
Övriga byggnader/utrymmen
Ett yttre förråd i nära anslutning till lägenheten tillhör bostadsrätten.

Ekonomi

Utgångspris
4 250 000 kr
Månadsavgift
6 556 kr/mån. Obligatoriskt tillägg om 229 kr vilket avser kabel-tv/bredband
Andel i föreningen
5.59484%
Bostaden är pantsatt
Ja
Nettoskuldsättning
499 513 kr. Underlaget för beräkningen har hämtats från bostadsrättsföreningens uppgifter, dels från årsredovisningen 2024 dels från utdrag ur bostadsrättsföreningens lägenhetsregister.

Driftskostnader

Antal personer i hushållet
2
Hushållsel
280 kr/mån
Försäkring
180 kr/mån
Övrigt
229 kr/mån
Summa
689 kr/mån
Posten övrigt avser Telia Triple Play

Energideklaration

Status
Utförd (2018-05-25)
Primärtenergital
119 kWh/m2 och år
Energiklass
E

Uteplats/balkong

Stenlagd uteplats med markis mot havet med havsutsikt.

Bilplats

P-plats 250 kr/mån. (Separat kö, 1 p-plats är avsedd per lägenhet)

TV- och internetanslutning

Bredband: Telia Triple Play (obligatoriskt tillägg om 229 kr).

Förening

Namn
Riksbyggen BRF Apeln
Organisationsform
Bostadsrättsförening
Org.nummer
716404-9772
Föreningen äger marken?
Ja
Äkta/oäkta förening?
Äkta
Antal lägenheter
20 st
TV/bredband
Telia Triple Play 229 kr/mån (obligatoriskt tillägg).
Överlåtelseavgift
2072 kr (betalas av Kopare)
Pantsättningsavgift
888 kr
Tillåts delat ägande?
Gårdsplats
Gemensam trädgård med grillplats.
Parkering
P-plats 250 kr/mån. (Separat kö)
Gemensamma utrymmen
Cykelförråd och tvättstuga.
Välkommen på visning
Kontakta mäklaren för visning.
Ansvarig mäklare Catrine Löfkvist
073 803 39 00
catrine@bertwig.se
Catrine Löfkvist

Intresseanmälan

 Ravinstigen 15
 Ravinstigen 15
 Ravinstigen 15
 Ravinstigen 15
 Ravinstigen 15
 Ravinstigen 15
 Ravinstigen 15
 Ravinstigen 15
 Ravinstigen 15
 Ravinstigen 15
 Ravinstigen 15
 Ravinstigen 15
 Ravinstigen 15
 Ravinstigen 15
 Ravinstigen 15
 Ravinstigen 15
 Ravinstigen 15
 Ravinstigen 15
 Ravinstigen 15
 Ravinstigen 15
 Ravinstigen 15
 Ravinstigen 15
 Ravinstigen 15
 Ravinstigen 15
 Ravinstigen 15
 Ravinstigen 15
 Ravinstigen 15
 Ravinstigen 15
 Ravinstigen 15
 Ravinstigen 15
 Ravinstigen 15
 Ravinstigen 15
 Ravinstigen 15
 Ravinstigen 15
 Ravinstigen 15
 Ravinstigen 15
 Ravinstigen 15
 Ravinstigen 15
Säljarens privata bilder Ravinstigen 15
Säljarens privata bilder
 Ravinstigen 15
 Ravinstigen 15
 Ravinstigen 15
 Ravinstigen 15
 Ravinstigen 15
 Ravinstigen 15
 Ravinstigen 15
Bilder Planlösning Intresseanmälan Karta