Till salu Sälja Köpa Våra tjänster Om oss Kontakt

Lybska gränd 4

Visby innerstad

5 500 000 kr

Karaktärsfull 1700-talsfastighet

I unik medeltida miljö, en karaktärsfull 1700-talshus byggt på medeltida grundmurar hjärtat av Visby innerstad. Ursprungligen två äldre skiftesverkshus som byggts ihop till en sammanhållen huskropp. Belägen längs med Lybska gränd som är tvärgata/gränd mellan Strandgatan och Mellangatan

Interiört har bottenvåningen vardagsrum, två sovrum, kök , wc och duschrum. Övre plan har vardagsrum samt en mindre lägenhet med separat ingång från baksidan. Källare under del av bostaden som nås från trädgården vid köksentrén.

Tomten består av en stenlagd del och del gräsmatta. Här finns plats att köra in en bil. Bostadens skick och standard är av äldre datum och det är ett utmärkt tillfälle och spännande utmaning för byggnads- och renoveringsintresserad person/familj som har möjlighet att utveckla detta till en praktfull bostad med ett unikt historiskt läge.

Nära Almedalen, Kruttornet och Strandpromenaden längs havet. Här finns ett mångsidigt utbud av restauranger, nöje och kulturliv.

Typ
Friliggande villa
Adress
Lybska gränd 4
Fast.beteckning
Visby Kompaniet 2
Område
Visby innerstad
Ort
Visby
Upplåtelseform
Friköpt
Antal rum
6 rok, varav 3 sovrum
Boarea
129 kvm
Tomtarea
192 kvm
Utgångpris
5 500 000 kr
Välkommen på visning
Kontakta mäklaren för visning.
Ansvarig mäklare Leif Bertwig
070-343 21 00
leif@bertwig.se
Leif Bertwig

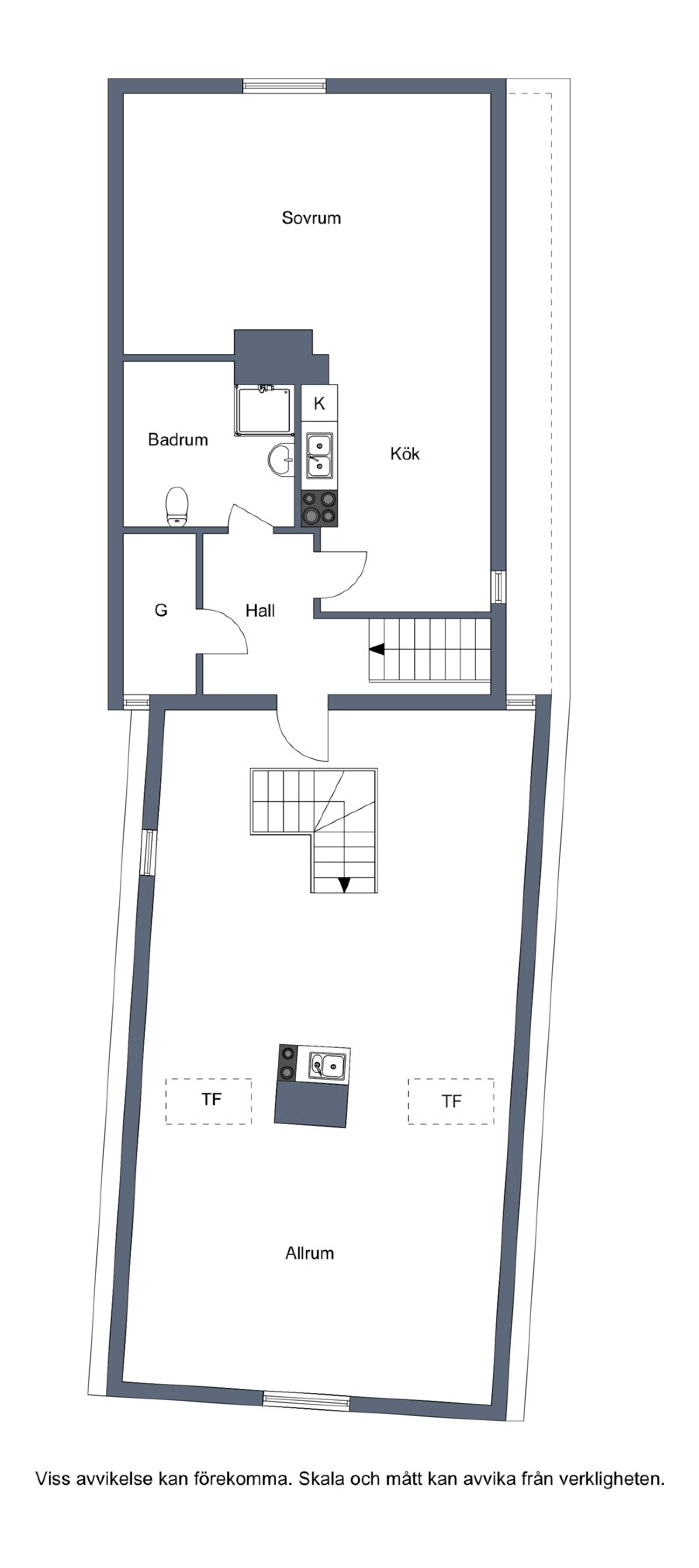
Planlösning

Fastigheten har tre entréer. En på främre långsidan, en på västra gaveln och en på bakre långsidan. Den som använts mest frekvent är den västra in från trädgården. Den leder in i mindre farstu för avhängning av ytterkläder. Vidare in nås kök som ligger i öppen planlösning mot matrum. Denna del är nyligen renoverad och har äldre detaljer bevarade så som en vacker plankvägg. Köket är utrustat med spis med ugn, diskmaskin, kyl med frysfack och bra arbetsytor. Trägolv ligger i kök och matrummet. Längre in i huset ligger ett allrum som använts som kontor och bibliotek. Här ligger stavparkettgolv. Innanför allrummet ligger ett sovrum med plats för dubbelsäng samt en garderob. Målade trägolv här.

Innanför allrummet ligger hall med utgång på främre långsidan av huset. I anslutning till hallen ligger ett wc-rum med wc och handfat. Plastmatta på golvet och målade väggar.

Längre in från hallen ligger vardagsrummet som har trägolv och rymmer soffa och här finns en öppen spis.

Längst österut på nedre plan ligger ett sovrum med trägolv som har plats för dubbelsäng och innanför detta ligger ett duschrum med dusch och tvättmaskin samt en stor garderob längs med ena väggen. Klinkergolv i duschrummet.

Övre plan har två sektioner. Ena delen nås via invändig trappa som leder upp till ett stort öppet rum som använts som allrum/vardagsrum/sovrum. , med två kokplattor, diskbänk och en kyl. Två takfönster, ett fönster mot västra gaveln och ett mindre fönster mot öster. Trägolv i denna del.

Den andra delen av övre plan nås via entré från baksidan av huset. Trappa upp här som leder upp i mindre hall med garderob i snedväggen. I den östra delen ligger ett sovrum som även i passagen mot hallen har spis med ugn, kyl och diskbänk. Plastmatta på golvet i denna del. Här finns även ett badrum med wc, handfat och dusch i duschkabin. Äldre ytskikt här med plastmatta på golvet och målade väggar.
Byggnadstyp
1 ½ plan med källare
Byggnadsår
1750
Fasad
Puts
Stomme
Skiftesverk/bulhus
Fönster
3-glasfönster/2-glasfönster
Bjälklag
Trä
Grundmur
Kalksten/cementsockel
Tak
Plåt
Grund
Källare
Uppvärmning
Fjärrvärme, öppen spis
Vatten/avlopp
Kommunalt vatten, Kommunalt avlopp.
Renovering
Byggnaden och bostaden har ett stort underhålls- och renoveringsbehov.
Areakälla
Areauppgifter enligt uppmätning 2024-05-06. Uppgifter enligt taxeringsuppgifterna 118 kvm.
Övrigt
Bostadshuset har en reveterad skiftesverksstomme i en våning med inredd vind under papptäckt sadeltak.
Byggnaden består av två sammanbyggda skiftesverkshus, det västra något bredare än det östra. Sannolikt är dessa hus de samma som nämns i 1785 års husklassifikation. Den nuvarande långsträckta byggnaden har ut mot gatan en symmetriskt placerad dörr och kalkstens trappa flankerad av fyra fönster. Byggnaden har spritputsade fasader och en omvikt takgesims, slät mot norr och svagt profilerad mot söder. Mot södra gårdssidan är taket uppbrutet av en äldre putsad takkupa. Mot väster finns en mindre farstutillbyggnad av stående svartmålad panel med trätrappa. Uppgifter om när byggnaderna byggdes samman och fick sitt nuvarande exteriöra uttryck saknas, men troligen skedde detta omkring mitten av 1800-talet. Byggnaden är genom sin stomme och exteriör kulturhistoriskt värdefull och har även ett miljöskapande värde i gatubilden

Tomten

Kompaniet 2 är en mindre långsmal fastighet belägen i kvarterets norra del, angränsande mot Lybska gränd. På 1697 års karta syns att nuvarande fastighet ingick i två tomter, nummer 196 och 197, vilka troligen nyttjades som kålgårdar. Idag är fastigheten bebyggd längs Lybska gränd, med ett boningshus, sannolikt uppfört som två skiftesverkshus vid mitten av 1700-talet. I fastighetens nordvästra hörn fanns fram till 1970-talets början ett mindre hus, även det uppfört under 1700-talet med långsidan utmed Lybska gränd. I huset hade tunnbindare N Hansson sin verkstad kring sekelskiftet 1900. Synliga spår av byggnaden finns i väster, på grannfastighetens husgavel. Fastigheten har två gårdsrum, ett smalt kalkstensbelagt utrymme norr om byggnadens östra del respektive en något större gräsbevuxen plats med rosor samt en biluppställningsplats väster om byggnaden. Fastigheten har genom sin äldre tomt- och bebyggelsestruktur samt det väl bevarade bostadshuset från 1700-talet ett stort kulturhistoriskt värde samt ett miljöskapande värde i gaturummet.

Bilplats

Plats för bil på tomten.

Driftskostnader

Antal personer i hushållet
1
Uppvärmning
23 951 kr/år
Hushållsel
4 443 kr/år
Vatten/avlopp
9 988 kr/år
Försäkring
3 816 kr/år
Summa
42 198 kr/år
(fastighetsavgift/skatt på 10 074 kr tillkommer)
Avser faktiska driftkostnader för 2023. I posten VA ingår även renhållning/sophämtning.

Energideklaration

Status
Utförd (2024-05-27)
Primärtenergital
121 kWh/m2 och år
Energiklass
D

Ekonomi

Taxeringsvärde
5 515 000 kr (fastställt avseende år 2021)
Taxeringsår
2021
Värdeår
1949
Byggnadsvärde
2 502 000 kr
Markvärde
3 013 000 kr
Skatt/avgift
10 074 kr
Typkod
220, Småhusenhet, bebyggd

Pantbrev

Totalt 7 st pantbrev om 737 210 kr.

Inskrivningar / Planbestämmelser

Planbestämmelser
Detaljplan (2010-02-22) Fornlämning (1 st)

Tillträde

enligt överenskommelse

Övrigt

Historien och miljön i denna del av Visby är påtaglig och man känner närvaron av medeltiden överallt.
Välkommen på visning
Kontakta mäklaren för visning.
Ansvarig mäklare Leif Bertwig
070-343 21 00
leif@bertwig.se
Leif Bertwig

Intresseanmälan

Lübska gränd, v väster, ner mot Strandgatan Lybska gränd 4
Lübska gränd, v väster, ner mot Strandgatan
Lübska gränd, vy österut, upp mot Mellangatan Lybska gränd 4
Lübska gränd, vy österut, upp mot Mellangatan
Gamla apoteket (t v) granne i norr Lybska gränd 4
Gamla apoteket (t v) granne i norr
Lübska gränd 4 med gamla apoteket i fonden Lybska gränd 4
Lübska gränd 4 med gamla apoteket i fonden
Plank avgränsar tomten mot gränden Lybska gränd 4
Plank avgränsar tomten mot gränden
Innergården gränsar mot Värdshuset Lindgården Lybska gränd 4
Innergården gränsar mot Värdshuset Lindgården
Detaljer innergården Lybska gränd 4
Detaljer innergården
Bottenvåning: Kök med matplats Lybska gränd 4
Bottenvåning: Kök med matplats
Bottenvåning: Kök med matplats Lybska gränd 4
Bottenvåning: Kök med matplats
 Lybska gränd 4
Bottenvåning: Kök Lybska gränd 4
Bottenvåning: Kök
Bottenvåning: Kök Lybska gränd 4
Bottenvåning: Kök
Bottenvåning: Kök Lybska gränd 4
Bottenvåning: Kök
Bottenvåning: Kök med matplats Lybska gränd 4
Bottenvåning: Kök med matplats
Bottenvåning: Vy från allrum mot kök Lybska gränd 4
Bottenvåning: Vy från allrum mot kök
Bottenvåning: Allrum med trappa till övre plan Lybska gränd 4
Bottenvåning: Allrum med trappa till övre plan
Bottenvåning: Vy från allrum mot kök Lybska gränd 4
Bottenvåning: Vy från allrum mot kök
Bottenvåning: Rum innanför allrum Lybska gränd 4
Bottenvåning: Rum innanför allrum
Bottenvåning: Rum innanför allrum Lybska gränd 4
Bottenvåning: Rum innanför allrum
Bottenvåning: Vardagsrum Lybska gränd 4
Bottenvåning: Vardagsrum
Bottenvåning: Vardagsrum Lybska gränd 4
Bottenvåning: Vardagsrum
Bottenvåning: Vardagsrum Lybska gränd 4
Bottenvåning: Vardagsrum
Bottenvåning: Vardagsrum Lybska gränd 4
Bottenvåning: Vardagsrum
Bottenvåning: Sovrum Lybska gränd 4
Bottenvåning: Sovrum
Bottenvåning: Badrum innanför sovrum Lybska gränd 4
Bottenvåning: Badrum innanför sovrum
Bottenvåning: Badrum innanför sovrum Lybska gränd 4
Bottenvåning: Badrum innanför sovrum
Bottenvåning: Toalett i anslutning till entrén från gränden Lybska gränd 4
Bottenvåning: Toalett i anslutning till entrén från gränden
Övre plan, väster Lybska gränd 4
Övre plan, väster
Övre plan, väster Lybska gränd 4
Övre plan, väster
Övre plan, väster Lybska gränd 4
Övre plan, väster
Övre plan, väster Lybska gränd 4
Övre plan, väster
Entré till övre plan, öster, från gården Lybska gränd 4
Entré till övre plan, öster, från gården
Övre plan, öster, med entré från gården Lybska gränd 4
Övre plan, öster, med entré från gården
Övre plan, öster, med entré från gården Lybska gränd 4
Övre plan, öster, med entré från gården
Övre plan, öster, med entré från gården Lybska gränd 4
Övre plan, öster, med entré från gården
Övre plan, öster, med entré från gården Lybska gränd 4
Övre plan, öster, med entré från gården
Övre plan, öster, med entré från gården Lybska gränd 4
Övre plan, öster, med entré från gården
 Lybska gränd 4
 Lybska gränd 4
Innergården med vy mot det ståtliga medeltidshuset: Gamla Apoteket Lybska gränd 4
Innergården med vy mot det ståtliga medeltidshuset: Gamla Apoteket
Köksentrén, via innergården Lybska gränd 4
Köksentrén, via innergården
Innergården med körport från gränden Lybska gränd 4
Innergården med körport från gränden
 Lybska gränd 4
 Lybska gränd 4
Medeltidens Wall Street: Strandgatan Lybska gränd 4
Medeltidens Wall Street: Strandgatan
 Lybska gränd 4
 Lybska gränd 4
 Lybska gränd 4
 Lybska gränd 4
 Lybska gränd 4
Bilder Planlösning Intresseanmälan Karta